電池材料干燥機原理(Belt Vacuum Drying,BVD ) 是一種在真空條件下,連續將原料分布在傳送帶上,物料隨傳送帶在加熱板上運轉從而被干燥,再經過冷卻、脆化、粉碎的(浸膏)一種低溫干燥方法。在整個干燥過程中,物料處于真空、封閉環境,干燥過程溫和(工作溫度 30-135° C ),
可以大限度的保持其物性,得到高質量的產品。
由于浸膏直接進入真空度下經過一段時間逐步干燥,干燥所 得的顆粒有一定程度的結晶效應,同時從微觀結構上看內部 有微孔。直接粉碎到所需要的粒徑后,顆粒的流動性很好, 可以直接壓片或者灌膠襄,顆粒具有良好速溶性。

目前,國內氫氧化鋰的干燥大部分是采用盤式干燥器。盤式干燥器雖工藝流程短、操作簡單、應用廣泛,但仍存在很多問題。
應用于氫氧化鋰干燥,真空低溫帶式固體連續干燥機有著獨特的優勢,可解決傳統的盤式干燥機引起的產品質量問題。
總之,真空帶式干燥出料產品質量各項指標明顯更優,最主要的是一致性、穩定性好,而盤式干燥,產品質量波動,不具備這種穩定性。
BVD 系列真空帶式干燥機組是溫州市金榜輕工機械有限公司近幾年重點研發成功的現代化制藥裝備。
國內自主研發滿足FDA 標準要求的真空帶式干燥機設備的制造商
已在國內眾多制藥、食品和生物企業一線投入規?;a,設備運行質量穩定,節能減排效果明顯。
BVD 系列真空帶式干燥機經浙江省科技廳組織的專家組的評審,與 2008 年通過了浙江省科技成果技術鑒定(鑒定證書編號:浙技協鑒定【2008】第186 號)。
BVD 系列真空帶式干燥機已先后被列入”十一五〃國家科技支撐計 劃項目、浙江省科技廳重大科技公關項目以及浙江省”重大科技專項 ( 優先主題)社會發展項目”。
1. 采用數字化集成制造技術,實現了動態真空干燥過程中的自動檢測和控制。
2. 采用數字化軸向自動糾偏技術,攻克了料帶在真空干燥過程中的跑偏難題。料帶輸送系統具有自動在線修正功能,可確保設備長時間連續運行。
3. 采用新型過熱水加熱技術,可在(30-135℃)的溫度范圍內在線自由調節,由于采用了液態全封閉循環加熱方式,無排放、無損耗,因此加熱溫度的穩定性和設備能耗 、利用率均優于傳統的蒸汽加熱技術。
4. 真空度采用全自動在線調節和控制技術,可對干燥的溫度、真空度、進料速度、干燥時間等主要工藝參數進行優化組合,使設備的工作利用率達到理想的經濟效益。
5. 采用 CIP 自動在線清洗系統,清洗方式多樣化,可對設備進行全方位無死角的清洗,清洗效果徹底、快捷,符合 GMP 要求。
6. 配料系統、進、出料系統可根據不同的物料特點進行多種優化設計配置及組合,已滿足用戶的工藝要求。
7. 以人性化的設計為原則:主機機身采用保溫隔熱措施,使設備工作溫度與操作環境溫度保持在適合的范圍內,設備內外部均設計有相應的檢測通道,便于日常的維護和保養。
| 型號 Model | 換熱面積 exch Heat area | 干燥溫度 Drying temperature | 進料含水 Feed moisture content | 干料含濕 Dry material moisture content | 加熱介質 Heating medium | 水蒸發量 Water |
| JBG3-15 | 15 m2 | 20-135° C (Adjustable) | 10-80% (Mobility) | 0.3-5% (Adjustable) | Superheated water | 8-12Kg/h |
| JBG5-35 | 35 m2 | 18-25Kg/h | ||||
| JBG5-50 | 50 m2 | 25-35Kg/h | ||||
| JBG5-70 | 70 m2 | 35-45Kg/h | ||||
| JBG5-80 | 80 m2 | 40-60Kg/h | ||||
| JBG7-120 | 120 m2 | 70-90Kg/h | ||||
| JBG9-160 | 160 m2 | 90-120Kg/h | ||||
| JBG11-220 | 220 m2 | 120-150Kg/h |
注:以上蒸發量是按蒸發水計算,如果蒸發有機溶劑,蒸發能力將大大提升,設備高度取決于安裝方式,以上設備高度供參考!
.
60 平方真空帶式干燥機平面布置參考圖
注:以上平面圖僅供參考,可根據不同場地進行相應的尺寸調整
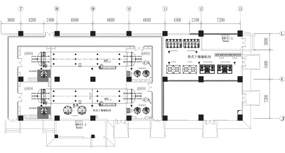
120 平方真空帶式干燥機平面布置參考圖
注:以上平面圖僅供參考,可根據不同場地進行相應的尺寸調整
六氟磷酸鋰、雙氟磺酰亞胺鋰(LiFSI)、氟化鋰(工業級/電池級)、氫氧化鋰 (單水/無水) 、碳酸鋰等鋰鹽,硫酸鈷、氯化鈷等鈷鹽、硫酸鎳等鎳鹽,三元前驅體,電解液添加劑等
公司始建于1997年,現在位于溫州濱海工業園,擁有三大生產基地,占地面積60030m2。
溫州市金榜輕工機械有限公司是集研發、制造和銷售與一體的高新技術企業。從事生產和銷售制藥、生物工程機械裝備的企業。公司主營中藥提取設備、濃縮設備、分離純化設備、酒精回收設備及干燥設備的咨詢、方案設計及制造、預算、現場安裝、售后維修服務。企業現擁有一支高技術、高素質的專業化員工團隊。目前有中高級技術人員28人,客座教授4人,員工300余人。高新技術企業,擁有A2級第三類壓力容器設計資質,D1、D2級一、二類壓力容器制造資質,GC2壓力管道安裝資質,有用歐盟CE認證,制造符合CMP、FDA和阿斯米標準。
公司自創辦以來,得到社會各界的廣泛支持,在全體員工的共同努力下,企業取得了迅猛的發展。金榜機械目前以成為頗具影響力的品牌,倍受中外客戶的關注和肯定。公司秉承“服務先行,質量至上”的經營理念,堅持“做一筆業務、交一個朋友”的方針,使企業規模迅速發展壯大,獲得了業界的廣泛認可,現已成為品牌制藥裝備制造企業。當下,我們金榜人將會倍加努力,真誠期待與您合作,攜手開創美好未來!